Descrizione

VR241 - ZONA MADONNINA - In condominio ben tenuto, ubicato in strada di scarso passaggio, libero subito luminoso ed ampio appartamento, PARZIALMENTE DA RITRUTTURARE, al Piano 3° CON ASCENSORE.
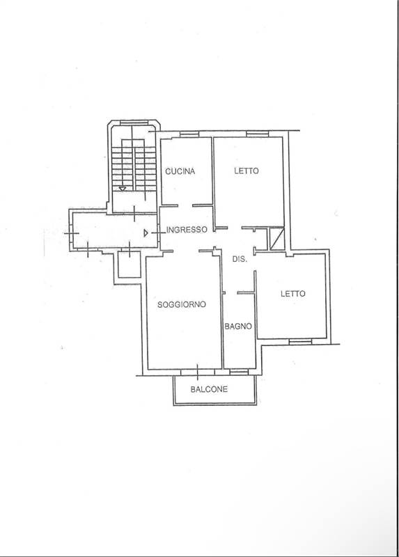
Ingresso, ampia sala/soggiorno/pranzo, cucina abitabile, disimpegno notte, ripostiglio, 2 camere matrimoniali, bagno, grande balcone.
Ampio garage al Piano Seminterrato.
Euro 178.000. Info 335.5736569

Puoi venirci a trovare presso i nostri uffici : Via Mondatora, 2 - 41121 Modena - Tel 059 473.20.86 / 328 717.24.15 - Email info@ducaleimmobiliare.it - Via G.B. Amici , 61/63 - 41121 Modena - Tel 059 24.28.52 / 338 680.90.87 - Via Bellini 43/45 - 41121 Modena - Tel 059 21.41.46 / 335 573.65.69 DUCALE
Per visionare tutte le nostre proposte visita il sito www.ducaleimmobiliare.it


Caratteristiche principali

Stato Immobile
Abitabile
Grado
Medio
Posizione
Periferia
Panorama
Vista Aperta
Orientamento
Est Sud Ovest
Lati Liberi
2
Giardino
Comune
Tipo Soggiorno
Salone
Tipo Cucina
Abitabile
Riscaldamento
Centralizzato
Tipo Riscaldam.
Termo valvole
Tipo Impianto
Radiatori
Fonte Energetica
Metano
Acqua Calda
Autonoma
Raffrescamento
No
Infissi
Legno
Serramenti
Discreto
Persiana
Tapparella PVC
Pavim. Giorno
Marmo
Pavim. Notte
Ceramica
Pavim. Cucina
Ceramica
Pavim. Bagno
Ceramica
Accesso Disabili
No
Accesso interno disabili
Non accessibile

Mappa

Via Biagi 48, Modena (MO)

Cookie preference