Descrizione

VRV1001 - MODENA - SANT'AGNESE VECCHIA - Ampia, esclusiva e signorile villa indipendente bifamiliare, che ospita due signorili appartamenti di ampia metratura, perfetti per nuclei familiari numerosi, accessoriati di garage triplo, stenditoi, varie cantine ed un grazioso locale taverna – miniappartamento.
Un piano sottotetto/soffitta di 260 metri quadri c.a.
Residenza dagli ampi spazi, in uno dei quartieri più prestigiosi di Modena, adiacente al centro storico, con un parco alberato di oltre 1000 mq per rilassarsi nella più totale privacy.
Via con modesto passaggio automobilistico, ampiamente alberata, comoda al Policlinico di Modena, permette di raggiungere il Centro Storico in pochi minuti ed è circondata da numerosi servizi utili ad una famiglia, rendendo superfluo l’utilizzo di mezzi di trasporto.

POSSIBILITA’ DI EDIFICARE/RICAVARE 4 AMPIE UNITA’ ABITATIVE
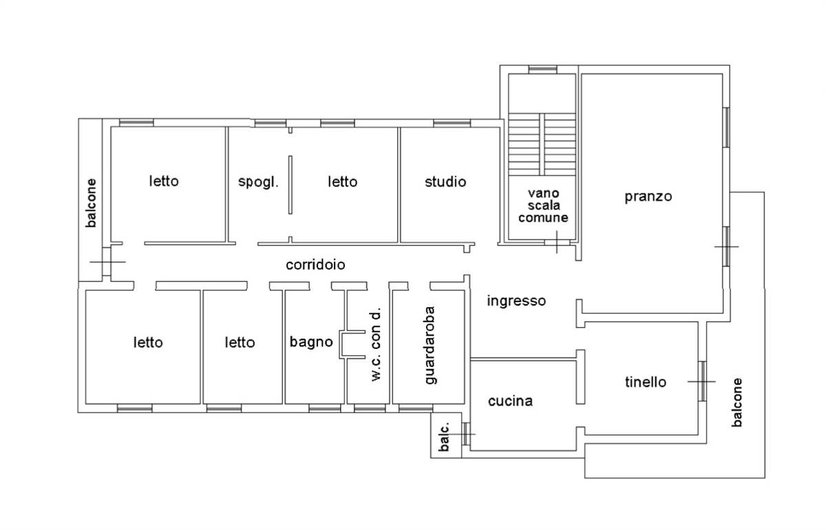
Le unità abitative, con una superficie commerciale di 124 metri quadri c.a cadauna, sono state così ipotizzate:
Ampia zona soggiorno d’ingresso con terrazzo angolare;
Comoda cucina abitabile;
Reparto notte con zona armadi;
Suite matrimoniale con bagno privato;
Camera doppia;
Camera singola;
Bagno comune;
Lavanderia;
Ampio balcone a servizio di tutte le camere;
Area condominiale calpestabile / verde su tre lati
4 Posti auto privati
4 Autorimesse doppie
3 Ampi locali condominiali
4 Cantine
Area destinabile come privata di 425 metri quadri

Puoi venire a trovarci presso i nostri uffici: Via Mondatora, 2 - 41121 Modena - Tel 059 473.20.86 / 328 717.24.15 - Email info@ducaleimmobiliare.it - Via G.B. Amici , 61/63 - 41121 Modena - Tel 059 24.28.52 / 338 680.90.87 - Via Bellini 43/45 - 41121 Modena - Tel 059 21.41.46 / 335 573.65.69 DUCALE
Per visionare tutte le nostre proposte visita il sito www.ducaleimmobiliare.it


Caratteristiche principali

Stato Immobile
Buono
Grado
Signorile
Posizione
Centro
Panorama
Vista Aperta
Orientamento
Nord Ovest Sud Est
Lati Liberi
4
Giardino
Privato
Tipo Soggiorno
Salone
Tipo Cucina
Abitabile
Riscaldamento
Autonomo
Tipo Riscaldam.
Caldaia
Tipo Impianto
Radiatori
Fonte Energetica
Metano
Raffrescamento
Split
Infissi
Legno Doppio Vetro
Serramenti
Buono
Persiana
Tapparella PVC
Pavim. Giorno
Marmo
Pavim. Notte
Parquet
Pavim. Cucina
Gres Porcellanato
Pavim. Bagno
Ceramica

Mappa

via Luigi Valdrighi , Modena (MO)

Cookie preference